8163 Bibiana way, Paseo, FL 33912
Sale$439,900
- 3 Beds
- 2 Full, 1 ½ Bath
1,800
Sq.Ft
Property Details / Mortgage Calculator / Community Information / Architecture / Features & Amenities / Rooms / Property Features
-
Property type:
Single family house
-
Days On Market:
50
-
MLS #:
2026001188
-
Year Built:
2007
-
County:
Fort Myers
Property Details
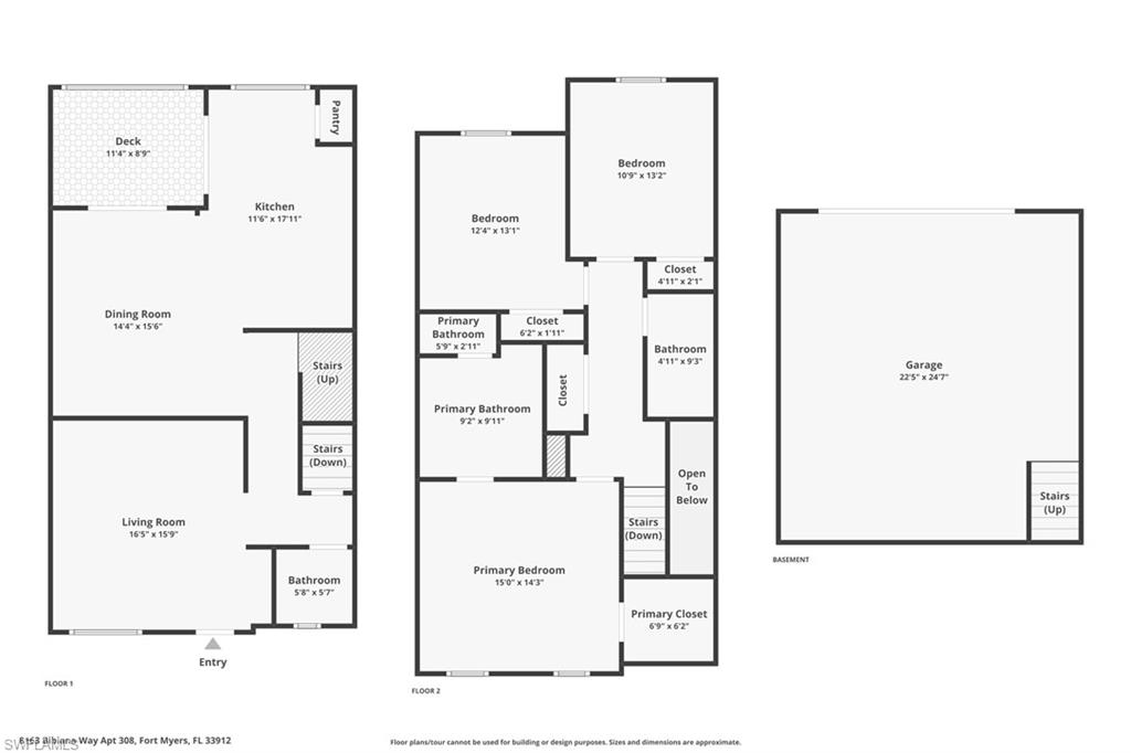
Step into the vibrant resort lifestyle of Paseo with this beautifully upgraded and FURNISHED Santa Cruz townhome, perfectly positioned on a rare QUAD offering a semi private pool and sun deck just steps from your back door. This spacious 3 bed, 2.5 bath, 1,800 sq. ft. residence features the only floor plan in Paseo with a private second story screened balcony overlooking the quad u2014 an incredible spot for morning coffee or evening relaxation. Additional features include a spacious screened entry and impact resistance doors and windows for added security and peace of mind. Inside, youu2019ll find a beautifully furnished warm, inviting space with newly installed granite counter-tops, stainless-steel appliances, solid wood cabinetry, diagonal tile flooring, designer lighting and fans, custom paint, and thoughtful decorative touches throughout. An oversized two car garage provides exceptional storage and convenience. Most furnishings convey with the purchase. Exclusions include the twin beds, nightstand, and dresser in upstairs spare bedroom, all dishes, small kitchen appliances, and personal items.Living in Paseo means enjoying one of Fort Myersu2019 most impressive amenity packages: a lagoon style pool complex, fitness center, theatre, pub, bistro, tiki bar, cafu00e9, tennis, pickleball, and more u2014 all surrounded by lush tropical landscaping that feels like a private resort. Whether youu2019re seeking a full time residence, seasonal escape, or investment opportunity, this home delivers unmatched charm, privacy, and lifestyle value in one of the areau2019s most desirable communities close to RSW airport, beaches, restaurants, and the Minnesota Twins and Boston Red Sox spring training fields.
Interested in this Listing?
Miami Residence will connect you with an agent in a short time.
Mortgage Calculator
Architecture
-
Bedrooms:
3
-
Bathrooms:
3
-
Year Built:
2007
-
Stories:
2
-
Style:
Multi-Story Home, Townhouse
-
Stories Total:
2
-
Parking Features:
Guest, Paved, Attached
Community Information
-
Address:
8163 Bibiana way, Paseo, FL 33912
-
City:
Legends Golf
-
Area:
Fort Myers
-
County:
Lee
-
Zip Code:
33912
Property Features
-
Lot Size:
0 Acres / 0 Sq. Ft.
-
View:
Landscaped Area
-
Zoning::
PUD
Features / Amenities
-
Appliances:
Electric Cooktop, Dishwasher, Disposal, Dryer, Microwave, Range, Refrigerator/Freezer, Refrigerator/Icemaker, Self Cleaning Oven, Washer
-
Flooring:
Carpet, Tile
-
Laundry:
Laundry in Residence
-
Home Theatre:
No
-
Pool:
Community
-
Spa:
Community
-
Other Structures:
Tennis Court(s), Cabana
-
Security Features:
Smoke Detector(s), Gated Community, Fire Sprinkler System
-
Private Pool:
No
-
Private Spa:
No
-
Cooling:
Ceiling Fan(s), Central Electric
-
Heating:
Central Electric
Detailed Map
Bonita Springs

