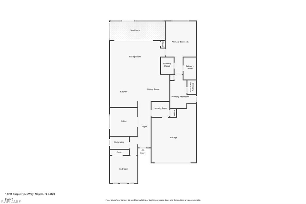
12391 Purple Ficus way, Valencia Trails, FL 34120
Sale$799,000
- 2 Beds
- 2 Full,
1,772
Sq.Ft6,098
Lot Size (sq.ft.)
Property Details / Mortgage Calculator / Community Information / Architecture / Features & Amenities / Rooms / Property Features
-
Property type:
Single family house
-
Days On Market:
50
-
MLS #:
225079741
-
Year Built:
2024
-
County:
Naples
Property Details
Discover Unmatched 55+ Luxury at Valencia Trails in this Barely Lived-In Gem! Built by GL Homes in 2024, the Flamingo floorplan is hardly one year old yet! Nestled in the best location inside Valencia Trails u2013 perfectly positioned closer to the brand-new Vanderbilt Beach Road entrance for effortless comings and goings, and far away from any road noise on the serene side of the community. The charming Flamingo floor plan offers 2 bedrooms plus a versatile den, 2 full baths, and 1,772 sq ft of thoughtfully designed, open-concept living. Step inside to discover all the extras to this new construction: new custom blinds, stunning decorator lighting, fresh satin-finish interior paint, and a pristine epoxy garage floor.Wake up to peaceful, scenic lake and preserve views from your private backyard oasis and enjoy sunsets and natureu2019s tranquility from the screened in lanai. This is Naplesu2019 newest 55+ enclave where resort-style amenities meet low-maintenance luxury. Priced to sell and move-in ready u2013 You can start enjoying all the fabulous Trails amenities this season! Your slice of the Naples dream awaits at 12391 Purple Ficus Way.
Interested in this Listing?
Miami Residence will connect you with an agent in a short time.
Mortgage Calculator
Architecture
-
Bedrooms:
2
-
Bathrooms:
2
-
Year Built:
2024
-
Stories:
1
-
Style:
Ranch, Single Family
-
Stories Total:
2
-
Parking Features:
Driveway Paved, Attached
Community Information
-
Address:
12391 Purple Ficus way, Valencia Trails, FL 34120
-
City:
Central Naples
-
Area:
Naples
-
County:
Collier
-
Zip Code:
34120
Property Features
-
Lot Size:
0.14 Acres / 6,098 Sq. Ft.
-
View:
Lake, Preserve, Trees/Woods
Features / Amenities
-
Appliances:
Cooktop, Gas Cooktop, Dishwasher, Disposal, Dryer, Freezer, Microwave, Range, Refrigerator, Refrigerator/Freezer, Refrigerator/Icemaker, Tankless Water Heater, Washer
-
Flooring:
Carpet, Tile
-
Laundry:
Laundry in Residence, Laundry Tub
-
Home Theatre:
No
-
Pool:
Community
-
Spa:
Community
-
Other Structures:
Cabana, Tennis Court(s)
-
Security Features:
Security System, Smoke Detector(s), Gated Community
-
Private Pool:
No
-
Private Spa:
No
-
Cooling:
Central Electric
-
Heating:
Central Electric
Detailed Map
Bonita Springs

