1248 Manado dr, Artesia, FL 34113
Sale$565,000
- 3 Beds
- 2 Full, 1 ½ Bath
1,946
Sq.Ft5,227
Lot Size (sq.ft.)
Property Details / Mortgage Calculator / Community Information / Architecture / Features & Amenities / Rooms / Property Features
-
Property type:
Single family house
-
Days On Market:
50
-
MLS #:
226006930
-
Year Built:
2007
-
County:
Naples
Property Details
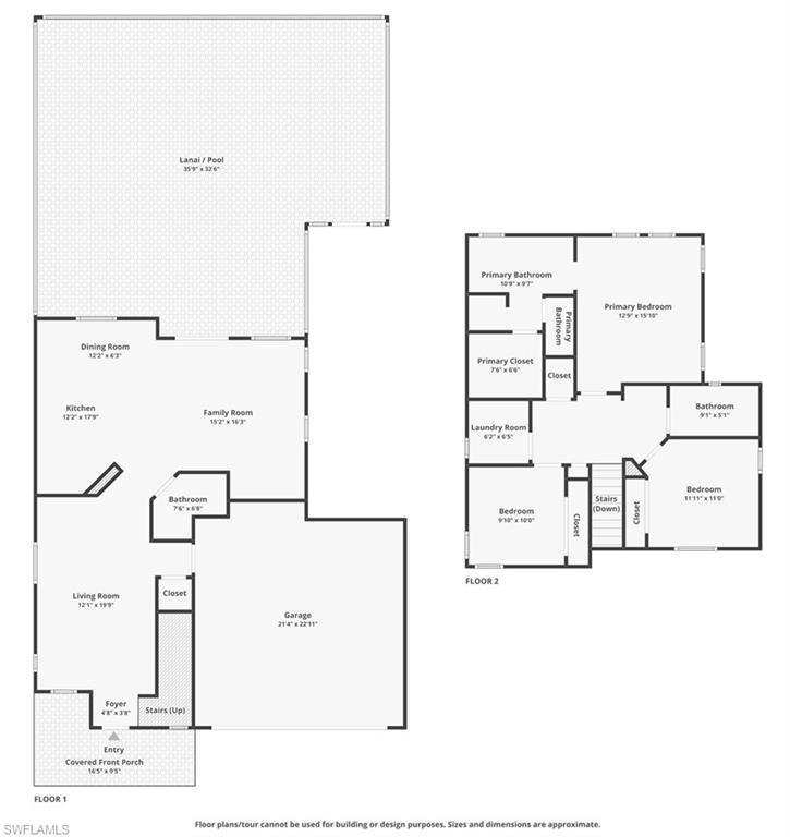
Get ready to enjoy fun in the sun in this well maintained pool home with southern exposure, offering the perfect balance of sunshine throughout the day. This spacious 3 bedroom, 2.5 bath residence features impact windows and doors, elegant crown molding, tile flooring, and plantation shuttersu2014designed for both comfort and style.The expansive eat-in kitchen boasts abundant granite counter space for meal prep, a breakfast bar, ample cabinetry, and a built-in pantry. Open to the family room, this inviting layout is ideal for entertaining and everyday living.Retreat to the owneru2019s suite, complete with a generous walk-in closet, dual vanities, a private water closet, a tiled walk-in shower, and a relaxing soaking tub. Two guest bedrooms share a full guest bathroom, providing comfortable accommodations for family and visitors.Step outside to the huge extended screened lanai, featuring a covered dining area and plenty of space for lounging. The sparkling pool includes a sun shelf, perfect for tanning and relaxing year-round.Artesia is a gated community embraced by the natural beauty of the Rookery Preserve. Ideally situated between historic downtown Naples and Marco Island, Artesia offers easy access to world-class dining, shopping, golf courses, boating, fishing, and the pristine beaches of the Paradise Coast. The Artesia Clubhouse is packed with resort-style amenities, including a sparkling pool, billiard room, card room, theater, fitness center, and library, along with a full calendar of social activities. Enjoy peaceful walks or bike rides along the scenic lakes, or stay active with pickleball and bocce in this sprawling 261-acre pet-friendly community, complete with a double dog park. With NO CDD fees and low HOA dues that include FREE cable, high-speed internet, and lawn maintenance, Artesia offers incredible value. Whether you're looking for a full-time residence, vacation retreat, or investment property, this home is the perfect fit. Since it is being offered Turkey all you need to bring is your toothbrush and bathing suit.
Interested in this Listing?
Miami Residence will connect you with an agent in a short time.
Mortgage Calculator
Architecture
-
Bedrooms:
3
-
Bathrooms:
3
-
Year Built:
2007
-
Stories:
2
-
Style:
Two Story, Single Family
-
Stories Total:
2
-
Parking Features:
Attached
Community Information
-
Address:
1248 Manado dr, Artesia, FL 34113
-
City:
East Naples
-
Area:
Naples
-
County:
Collier
-
Zip Code:
34113
Property Features
-
Lot Size:
0.12 Acres / 5,227 Sq. Ft.
-
View:
Landscaped Area
Features / Amenities
-
Appliances:
Dryer, Microwave, Refrigerator, Self Cleaning Oven, Washer
-
Flooring:
Carpet, Tile
-
Home Theatre:
No
-
Pool:
Community, Below Ground
-
Security Features:
Smoke Detector(s), Gated Community
-
Private Pool:
Yes
-
Private Spa:
No
-
Cooling:
Central Electric
-
Heating:
Central Electric
Detailed Map
Bonita Springs

