71 Emerald Woods dr, Pine Ridge, FL 34108
Sale$285,000
- 2 Beds
- 2 Full, 1 ½ Bath
1,350
Sq.Ft
Property Details / Mortgage Calculator / Community Information / Architecture / Features & Amenities / Rooms / Property Features
-
Property type:
Single family house
-
Days On Market:
50
-
MLS #:
226004627
-
Year Built:
1988
-
County:
Naples
Property Details
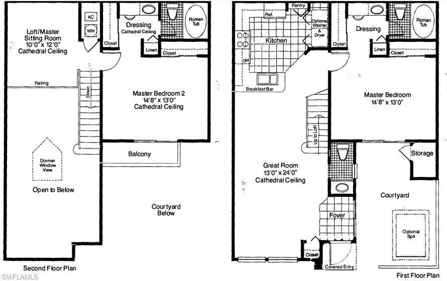
The wait is over. Only 2 miles to the beach, 10 minutes by bike, and 7 minutes by car. You MUST check out the lifestyle video. Steps away from popular Mercato for dining, dancing & shopping. gets better Sept 2023 roof!...A true townhouse with 2 primary bedrooms & an added den, a perfect media room & yes, a u00bd bath for entertaining. Sky-high ceilings and a private patio await your future private hot tub (see floor plan) & your perfect sunset balcony awaits your personal touches. Simply imagine your easy update. Only 7 items to transform your competitively priced condo into your private beach escape or full-time home: paint, flooring, cabinets, plumbing fixtures, lighting, appliances & trim. So So easy & we have the team to help you, if you like. It's a Naples Dream come true.
Interested in this Listing?
Miami Residence will connect you with an agent in a short time.
Mortgage Calculator
Architecture
-
Bedrooms:
2
-
Bathrooms:
3
-
Year Built:
1988
-
Stories:
2
-
Style:
Contemporary, Low Rise (1-3)
-
Stories Total:
2
-
Parking Features:
None
Community Information
-
Address:
71 Emerald Woods dr, Pine Ridge, FL 34108
-
City:
Pelican Bay
-
Area:
Naples
-
County:
Collier
-
Zip Code:
34108
Property Features
-
Lot Size:
0 Acres / 0 Sq. Ft.
-
View:
Landscaped Area
Features / Amenities
-
Appliances:
Cooktop, Dishwasher, Disposal, Dryer, Microwave, Range, Refrigerator, Self Cleaning Oven, Washer
-
Flooring:
Tile
-
Home Theatre:
No
-
Pool:
Community
-
Spa:
Community
-
Security Features:
Smoke Detector(s)
-
Private Pool:
No
-
Private Spa:
No
-
Cooling:
Ceiling Fan(s), Central Electric
-
Heating:
Central Electric
Detailed Map
Bonita Springs

